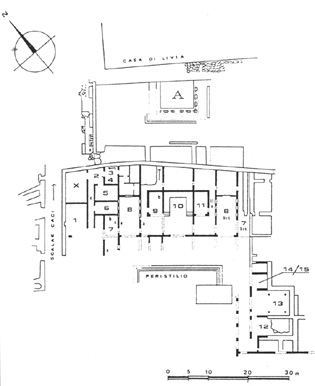
CASA DI AUGUSTO

Situata sul pendio meridionale del Palatino sul lato che guarda il settore occidentale 
del Circo Massimo, è situata la casa detta di Augusto, nata dall'unione di case diver-
se tra cui quella di Livia.
La casa di Augusto, connessa al vicino Tempio di Apollo, è formata da una serie di 
ambienti distribuiti su due terrazze.
Nella terrazza inferiore, le stanze riportate alla luce (costruite in opera quadrata di 
tufo) sono basate su due file e si addossano a un poderoso muro in conglomerato 
cementizio che serviva a contenere il terreno soprastante.
Nella casa, fatta ristrutturare da Augusto dopo l'incendio del 3 d.C., si può ricono-
scere una parte privata con stanze piccole e semplici e una parte pubblica (posta vi-
cino al Tempio di Apollo) caratterizzata da stanze ampie e fastose, con soffitti deco-
rati a stucco e pavimenti in marmo.
Nella zona privata (1-6) sono da menzionare due ambienti adiacenti: la "stanza delle 
maschere" (5) e la "stanza dei festoni di pino" (6). La prima presenta una ricca decora-
zione architettonica ispirata alle scenografie teatrali con al centro di ogni parete la 
rappresentazione di un santuario agreste. La seconda stanza presenta uno schema 
decorativo con festoni di pino disposti tra i pilastri lignei di un porticato che sorge da 
un podio. Nel settore pubblico è presente un'impostazione architettonica più sofisti-
cata: la stanza "a pareti nere" (7) è divisa in pannelli da paraste rosso vivace e da fasce 
gialle agli angoli. Nella "biblioteca occidentale" (8) la decorazione è divisa in due 
parti: nell'ingresso grandi pannelli gialli risaltano su fondo rosso; nella parte interna, 
il fondo rosso è limitato da fasce verdi e gialle. Negli ambienti 8 e 9 l'ornato è di tipo 
semplice. Nella stanza "delle prospettive" (11), una costruzione a due piani è proiet-
tata in avanti, comportando così un effetto prospettico. Nella rampa che dalla casa 
portava al Tempio di Apollo, c'è alternanza tra tinte chiare e scure.
Nella grande sala colonnata (13) sono presenti pavimenti in marmo a intarsio e volte 
a stucco. Il piccolo ambiente quadrato (14) è caratterizzato da pavimento a intarsi 
marmorei; nella decorazione pittorica le pareti sono divise in pannelli purpurei aperti 
verso l'esterno. Lo "studiolo di Augusto" (15) risulta essere il più interessante per la 
raffinatezza e la varietà delle decorazioni pittoriche; lo schema decorativo è quello 
consueto, costituito da podio, ortostati e zona di coronamento dove i colori prevalenti 
sono il rosso, il giallo e il nero. 
Da ammirare il soffitto che presenta una raffinata alternanza di stucchi e riquadri 
dipinti.
 

HOME